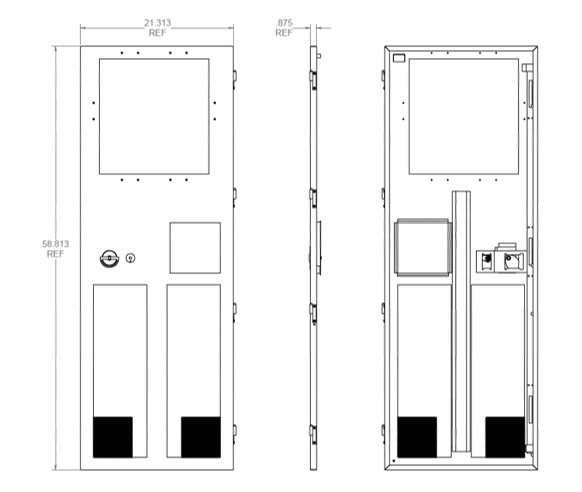
Return to the checklist selection list 710-806-00 Rev A, S48592-75R Please enable JavaScript in your browser to complete this form.Enter Serial Number *Enter Job Number *Customer (AUTO)Part Number (AUTO)Description (AUTO)Page 1 - Final Inspection Checklist Sample Criteria (Examples) 1. All edges are to be free from sharp and rough surfaces. *YesNoN/A2. Good powder paint coverage (No hanger marks, drips, or runs). Poor paint coverage not acceptable. *YesNoN/A3. No chipping, rust, or scratches. *YesNoN/A4. All welds must be ground clean and / or hidden. *YesNoN/A5. All PEM nuts are to be free of overspray, powder paint, and burrs. Paint on threads is not acceptable. *YesNoN/A6. Verify that male and female hinges are compatible. *YesNoN/A7. All metal parts shall be poly-bagged to prevent paint chipping and damage. *YesNoN/A8. Check all colors with provided samples. *YesNoN/A9. Verify shipping container shows no signs of leakage, such as holes or wet spots. *YesNoN/APage 2 - Final Check Criteria Examples found on Page 1 / Use arrows when applicable. 1. Confirm height, width, and depth is as referenced at 58.813 REF, 21.313” REF, .875 REF respectively. Height *Width *Depth *2. Confirm Door Handles, Latching Mechanism and Hinges function without obstruction. *YesNoN/A3. Confirm paint all surfaces, except where indicated( Flag#6) , are texture light gray.***No overspray is permissible*** Must compare against archived color sample *PassFail4. Confirm masked edge of circle all around .07”. Flag #5 *YesNoN/A5. Confirm Ground stud location. Flag #7 ; Add pc part marking after finishing, on the surface indicated Flag#4 *YesNoN/A6. Confirm the far side of the unit at the location indicated is marked per Teradyne Inc. Control Document #CD0002 Method #6 (Black Ink 1/8”-1/4” height in san serif gothic font – “Teradyne Part Number”, ”Revision Letter” “Vendor Code”, ”Date Fabricated”. Date Fabricated to be XXYY where xx=week and yy=year.) Example: 987-684-00A 100330 2911 *YesNoN/APage 3 - Final Check Criteria Examples found on Page 1 / Use arrows when applicable. 1. Confirm the presence of Loctite 242 on hardware at Cam Latch location (2 Places) *YesNoN/APage 4 - Final Check Criteria Examples found on Page 1 / Use arrows when applicable. 1. Confirm there are 9 snap in nylon buttons at the location indicated. *YesNoN/APage 5 - Final Check Criteria Examples found on Page 1 / Use arrows when applicable. 1. Confirm the presence of Loctite 242 on the Southco Lock Assembly *YesNoN/A2. Confirm the stack up of the lock assembly is as follows: Lock Assembly, Washer, and Hex Screw *YesNoN/A3. Confirm the Lock Assembly is Torqued to 38-45 in-lbs using a Torque Wrench *YesNoN/APage 6 - Final Check Criteria Examples found on Page 1 / Use arrows when applicable. 1. Confirm the orientation of the Lock Assembly when viewed from the front of the door is as indicated with the small dimple on the front facing downward. *YesNoN/APage 7 - Final Check Criteria Examples found on Page 1 / Use arrows when applicable. 1. Confirm the Locking Bar is situated between the door Brackets as shown and that the Open section of the Locking Bar is not deformed and is situated at the bottom of the door nearest the perforated section. *YesNoN/APage 8 - Final Check Criteria Examples found on Page 1 / Use arrows when applicable. 1. Confirm the orientation of the handle in the “home” position is parallel to the left / right side of the door and measures 4.20” +/-.050” from the outside of the door to the top of the handle and the outside of the door to the bottom of the handle as shown. *YesNoN/ATop Measurement *Bottom Measurement *Page 9 - Final Check Criteria Examples found on Page 1 / Use arrows when applicable. 1. Confirm door latches contain the appropriate hardware. *YesNoN/A2. Confirm door hardware is not compressed or deformed. *YesNoN/A3. Confirm the texture from the handle plate and handle are of the same finish. *YesNoN/A4. Confirm there are no defects in the handle as defined in Teradyne QAA-065-001. Inspector must print and review during inspection. *YesNoN/APage 10 - Final Check Criteria Examples found on Page 1 / Use arrows when applicable. 1. Confirm the CAM hardware is torqued to 75-80 in-lbs using a Torque Wrench *YesNoN/A2. Confirm the presence of Loctite 242 on the threads of the CAM assembly *YesNoN/A3. Confirm the stack-up of hardware is as follows: Lock Washer, Hex Nut *YesNoN/APage 11 - Final Check Criteria Examples found on Page 1 / Use arrows when applicable. 1. Visual Inspection – Confirm metal finish color is yellow plating. No corrosion or scratches through coating are allowed. *YesNoN/A2. Functional Test – Confirm doors close tight creating a seal between door and the frame. *YesNoN/A3. Functional Test – Confirm doors latch in the closed position and are able to turn to the closed position. *YesNoN/A4. Functional Test – Confirm the locking bar stays in current position and is not “free falling”. *YesNoN/A5. Functional Test – Confirm door latches move freely without difficulty. *YesNoN/APage 12 - Final Check Criteria Examples found on Page 1 / Use arrows when applicable. 1. Confirm the function of the Lock Cam. There should be no obstruction or interference. *YesNoN/APage 13 - Final Check Criteria Examples found on Page 1 / Use arrows when applicable. 1. Confirm the hardware for each screw on the hinge is tightened to 17-20 inch-lbs. 8 locations *YesNoN/A2. Confirm the presence of 8 plastic washers between the door and the door hinge. *YesNoN/A3. Verify the hinge position is as indicated after hinges are tightened *YesNoN/A4. Verify that male and female hinges are compatible. *YesNoN/APage 14 - Final Check Criteria Examples found on Page 1 / Use arrows when applicable. 1. Confirm the door is marked per Teradyne drawing specifications. (Part Number – Rev Letter – Supplier Code – Date Code) (Example: 977-233-00 E 100300 0213) Date Code is Week/Year. *YesNoN/A2. Confirm the location of part # stamp marking, refer to job traveler notes and print for part # stamp details and location. *YesNoN/ATake the following photos: Inside the cabinet – Front * Click or drag a file to this area to upload. Inside the cabinet – Rear * Click or drag a file to this area to upload. Side of cabinet, no panels – Left * Click or drag a file to this area to upload. Side of cabinet, no panels – Right * Click or drag a file to this area to upload. Silk screen – Front * Click or drag a file to this area to upload. Silk screen – Rear * Click or drag a file to this area to upload. Finished unit with doors and panels assembled – Front, Back, Right side, Left side * Click or drag a file to this area to upload. Serial Number * Click or drag a file to this area to upload. Packed unit * Click or drag a file to this area to upload. CommentsI acknowledge that the above information is complete and accurate (sign name) * Clear Signature Submit